Возможности nanoCAD Standart Build
История 3D-построений
Отслеживает изменения в 3D-модели и управляет ими. Сохраняет операции, позволяет вернуться к предыдущему состоянию модели и изменить выполненные действия. Делает более удобным процесс редактирования и добавления элементов, упрощает внесение изменений в детали и сборки, сохраняет варианты моделей
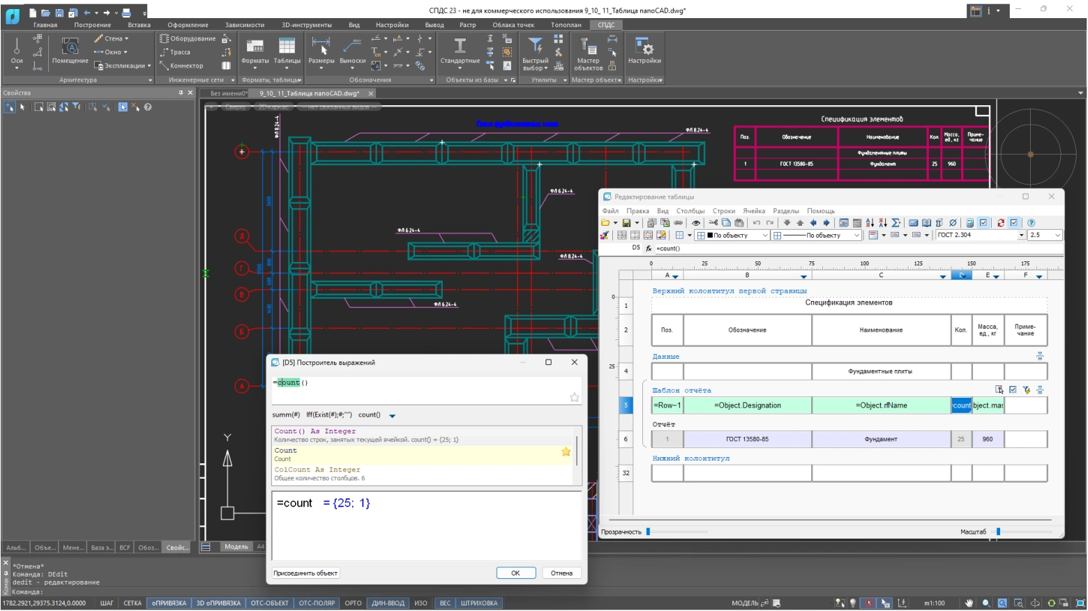
Автоматические отчеты
С помощью инструмента Автоматические отчеты можно получить информацию в табличной форме из различных объектов чертежа, включая линии, полилинии, блоки, объекты оформления СПДС, а также универсальные маркеры и параметрические объекты. При этом между объектами и отчетом выстраивается двусторонняя связь, которая позволяет вносить в объекты изменения через таблицу
Мастер объектов и параметрические объекты
Параметрический инструмент для создания типовых деталей. Распознаёт пользовательскую графику и позволяет указывать табличные параметры. Поддерживает создание нескольких видов и исполнений, пользовательских диалогов для стандартных деталей, а также контуров подавления для перекрытия примитивов






















