Возможности продукта Компонент «СПДС»
Автоматические отчеты
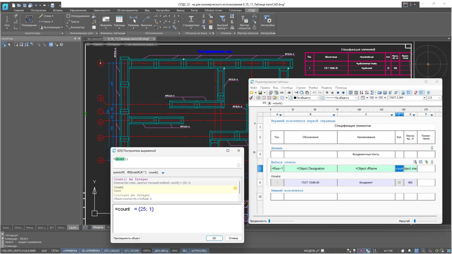
С помощью инструмента Автоматические отчеты можно получить информацию в табличной форме из различных объектов чертежа, включая линии, полилинии, блоки, объекты оформления СПДС, а также универсальные маркеры и параметрические объекты. При этом между объектами и отчетом выстраивается двусторонняя связь, которая позволяет вносить в объекты изменения через таблицу
Мастер объектов и параметрические объекты
Параметрический инструмент для создания типовых деталей. Распознаёт пользовательскую графику и позволяет указывать табличные параметры. Поддерживает создание нескольких видов и исполнений, пользовательских диалогов для стандартных деталей, а также контуров подавления для перекрытия примитивов








